СБУ 3.2-2 ВрII
Характеристики изделия:
| Параметр | Значение |
|---|---|
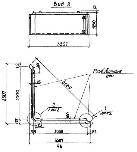
| Длина | 3307 мм |
| Ширина | 3307 мм |
| Высота | 1230 мм |
| Масса | 3000 кг |
| Нормативный документ | Серия 3.702.1-4 |
Цена:
Рассчитать стоимостьСБУ 3.2-2 ВрII Силосный блок угловой по Серии 3.702.1-4.
| Параметр | Значение |
|---|---|
| Длина | 3307 мм |
| Ширина | 3307 мм |
| Высота | 1230 мм |
| Масса | 3000 кг |
| Нормативный документ | Серия 3.702.1-4 |
СБУ 3.2-2 ВрII Силосный блок угловой по Серии 3.702.1-4.