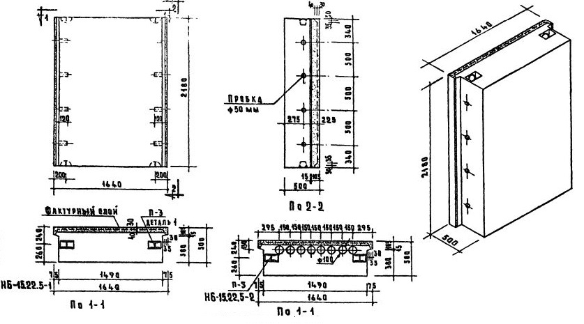
НБ-15.22.5-1

Чертеж изделия:
Чертеж НБ-15.22.5-1
Характеристики изделия:
ПараметрЗначение
Длина1640 мм
Ширина500 мм
Высота2180 мм
Масса3245 кг
Нормативный документСерия 1.133-1

Стеновые легкобетонные блоки толщиной 50 см по Серии 1.133-1.

НБ-15.22.5-1   Простеночный блок.